Harici tip ayırıcılar, elektrik şebekelerinde açık hava koşullarında kullanılan yüksek gerilim şalt cihazlarıdır. Seksiyoner olarak da bilinen bu ürünler, direk üzerinde veya açık saha uygulamalarında enerji hatlarının güvenli bir şekilde açılıp kapatılmasını sağlar.
36kV – 16kA kapasiteli harici ayırıcı modellerimiz, TEDAŞ ve TSE EN 62271-102 standartlarına uygun olarak üretilmektedir. Nem, rüzgar ve diğer hava şartlarına dayanıklı malzemeler sayesinde uzun ömürlü kullanım sunar.
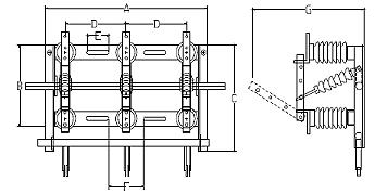
HARİCİ TİP AYIRICI
– 36KV 16kV Harici Sigortalı ve Sigortalı Topraklı Ayırıcılar ( HS – HST )


– 36kV 16kA Harici Normal ve Topraklı Ayırıcılar ( HA – HAT )


2 FAZLI HARİCİ TİP AYIRICI
– 2 Fazlı Harici Sigortalı Toprak Ayıracı




– Tek Fazlı Harici Tip Ayırıcı




HARİCİ SİGORTALI TOPRAKLI kW



ÖZELLİKLERİ;
- Ayırıcılar TSE EN 62271-102: 2002 standartları ve TEDAŞ şartnamesine uygun olarak üretilmektedir.
- Ayırıcılar orta gerilim şebekelerinde ve sadece yüksüz devrelerin açılıp kapatılmasında kullanılır.
- 12-17.5 – 36 kV, harici ve toprak ayırıcıları olmak üzere 1250A’e (dahil) kadar çeşitleri bulunmaktadır.
- Ayırıcılar trifaze olup normal, topraklamalı, sigortalı ve sigortalı topraklamalı olmak üzere 4 tiptir.
- Ayırıcılar alttan ve üstten topraklamalı olarak iki şekilde de kullanılabilirler. Ayrıca ana mil ile toprak mili arasında mekanik kilitleme sistemi uygulanabilir.
- Bıçaklarda çift taraflı korunmuş yaylar kullanılarak minimum geçiş direnci sağlanmıştır.
- Ayırıcılar asgari 5 mm. kalınlığında saçtan kıvrılarak hazırlanan U profil ve 60’lık köşebentlerden oluşan ana şaseye sahiptir.
- Elektrolitik bakırdan üretilen bıçak ve kontaklar gümüş kaplamalıdır.
- Izalatörler, haricilerde porselen, dahililerde ise isteğe bağlı olarak porselen veya epoxy-reçine olarak kullanılmaktadır.
- İmalattaki bütün kaynak işlemlerinde gazaltı kaynağı kullanılmaktadır.
- Harici ayırıcı şaseleri daldırma galvaniz, dahililer ise daldırma galvaniz veya isteğe bağlı olarak TEDAŞ şartnamesine uygun boya yapılmaktadır.
- Ayırıcı milleri altıköşe 27 mm. transmisyon çeliğinden yapılır.
“Firmamız ISO 9001-2008 Kalite Sistem Belgesine sahiptir.”
